221 N Swinton Av, Delray Beach, FL

$10,000

Previous Next

2

Beds

2

Baths

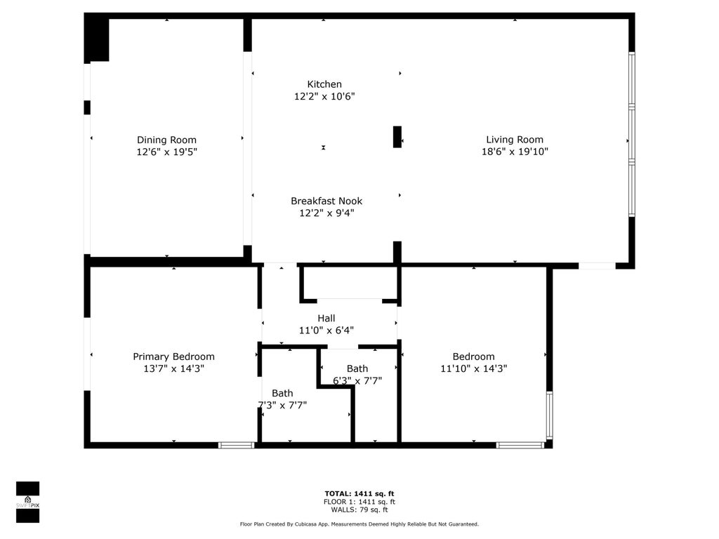
1,657

Square feet

About 221 N Swinton Av

Don't miss out on the perfect opportunity to rent this gorgeous 2-bed, 2-bath, spacious and stylish home in the heart of Delray! This property is fully furnished & located just 2 blocks from Atlantic Avenue! Walk to shops, beach, or any of the multiple 5-star restaurants! Meticulously maintained with an elegant living area, spacious dining area, and updated kitchen with quartz countertops & SS appliances. The primary bedroom is light and bright, featuring an updated bathroom. The second bedroom has a queen-size bed and an updated bath. Each bedroom is equipped with beautiful luxury linens. Just outside of the dining room sliding glass doors, you can enjoy the perfectly manicured backyard with lush landscaping, cozy patio, and BBQ. Rental includes water, cable & internet.

Features of 221 N Swinton Av

MLS® # RX-11114687
Price $10,000
Bedrooms 2
Bathrooms 2.00
Full Baths 2
Square Footage 1,657
Type Rental
Sub-Type Duplex/Triplex/Quadplex
Status Active
Pets Allowed Restricted
Restrictions Comercial Vehicles Prohibited, No RV

Community Information

Address 221 N Swinton Av
Area 4460
Subdivision TOWN OF DELRAY
City Delray Beach
County Palm Beach
State FL
Zip Code 33444

Amenities

Amenities Sidewalks
Parking 2+ Spaces
View Garden
Is Waterfront No
Waterfront None
Has Pool No

Interior

Interior Features Built-in Shelves, Split Bedroom
Heating Gas
Cooling Central
Fireplace No
# of Stories 1

Exterior

Exterior Features Auto Sprinkler, Covered Patio, Fenced Yard, Built-in Grill

Additional Information

Date Listed August 11th, 2025

Listing Details

OfficeReal Broker, LLC

Listing Map

Request a Showing

Provide a valid email address.
When would you like to view this property?